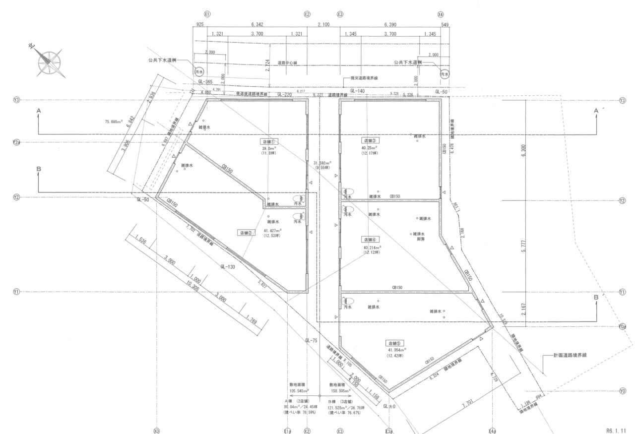
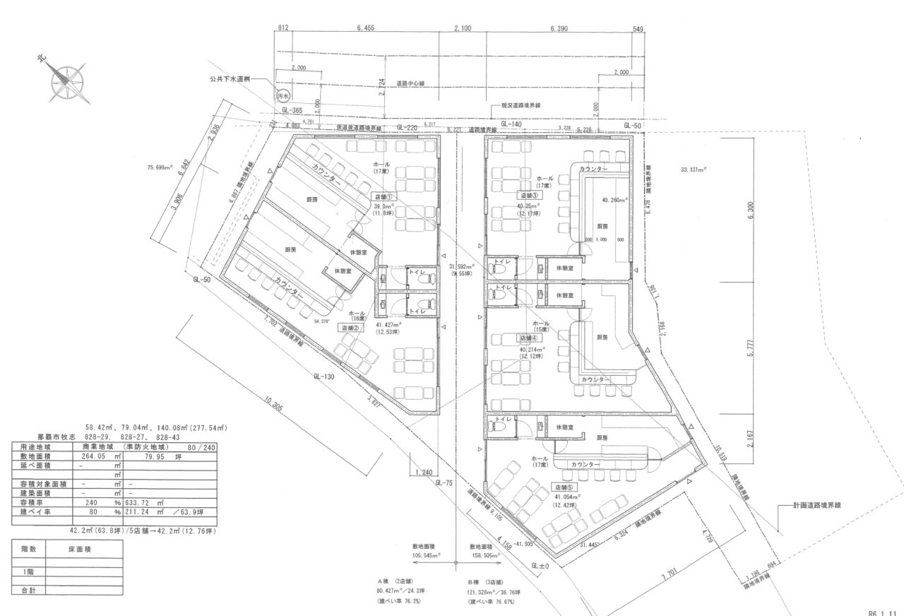
【想定利回り7.3%】鉄骨造新築を建築し、飲食店テナント5店舗募集して収益物件を実現♪えびす通りに面した土地で集客するには圧倒的な立地!屋台村をイメージした設計図面あります。令和7年時点の建築見積りあります。いつでもご連絡お待ちしております!
【土地】那覇市牧志三丁目
- タイプ
- 土地
- 価格
- 20,000万円
- 所在地
- 那覇市牧志三丁目
- 土地権利
- 所有権
- 土地面積
- 277.54㎡ 83.87坪
- 建ぺい率
- 80%
- 容積率
- 400%
更新日:2026年1月24日(土曜日)
物件詳細情報
- タイプ
- 土地
- 価格
- 20,000万円
- 所在地
- 那覇市牧志三丁目
- 土地権利
- 所有権
- 土地面積
- 277.54㎡ 83.87坪
- 建ぺい率
- 80%
- 容積率
- 400%
- 接道種類
- 公道
- 接道状況
- 有
- 地目
- 宅地
- 用途地域
- 商業地域
- 地勢
- 平坦
- 都市計画
- 市街化区域
- 交通
- バス停【開南】まで 徒歩約5分
- その他費用
- 固定資産税:確認中
- 現況
- 更地
- 引渡し
- 相談
- 取引形態
- 専任
- 設備
- 準防火地域に該当
- 備考
- ■周辺環境:セブン-イレブン 新天地浮島店(徒歩約10分)・第一牧志公設市場(徒歩約2分)・那覇 国際通り商店街(徒歩約4分)・桜坂劇場(徒歩約4分) ★サンサン沖縄では、「購入ガイド」を使って理想の住まい選びのお手伝いをサポート致します✨ ★こちらの物件に関してのお問い合わせは、【イエステーション(有)サンサン沖縄 ナハ北店】まで! ★皆さまからのお問い合わせを、心よりお待ちしております♪ 【創立30年の信頼と実績】 これまで多くのお客様の縁結びをさせて頂きました! 取引したお客様からの紹介やリピートが多いのも信頼の証であると自負しております! イエステーションは全国に206店舗展開しており、有限会社サンサン沖縄は沖縄県の中部、南部の「地域専門」の不動産です! 地域ごとに専門スタッフを配置し、活動範囲を「浅く広く」ではなく「狭く深く」することで最速の情報提供と最適なご提案が出来ます。

安里


担当スタッフのコメントお問い合わせお待ちしております♪